Завантажую...

0(96) 490-91-91
SF-3-275-488

Продам 1-кімнатну квартиру, ЖК Одеський бульвар

Розташування: Новосілки, Київська область, Фастівський район, Приміська вул.

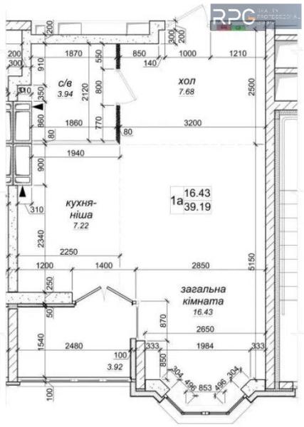
1 39/7 м² 14/25 38 800 $
Продам 1-кімнатну квартиру, ЖК Одеський бульвар

продаж квартира

Основна інформація

Ціна:  
- за об’єкт 38 800 $
- за кв. метр ≈995 $
Ремонт: без внутрішніх робіт
Клас житла: комфорт
Типове планування: нестандартне планування
Кількість кімнат: 1
Площа загальна, м²: 39
Поверх: 14
Поверхів: 25
Рік будівництва: 2021-2025
Санвузлів: 1
Розташування: спальні райони

Додатково

Комунікації

Вода:
центральна;
Опалення:
центральне;

Параметри об’єкта

Матеріал стін:
газоблок;

Інше

Дата оновлення інформації:
09.04.2026 19:40;