Завантажую...

0(96) 490-91-91
SF-3-237-210

Продам 1-кімнатну квартиру, ЖК Русанівська Гавань

Розташування: Київ, Дніпровський район, Лівобережний масив, Євгена Маланюка вул., 101Ш

Мапа
1 67/38 м² 17/25 118 500 $
Продам 1-кімнатну квартиру, ЖК Русанівська Гавань

БЕЗ КОМІСІЇ!
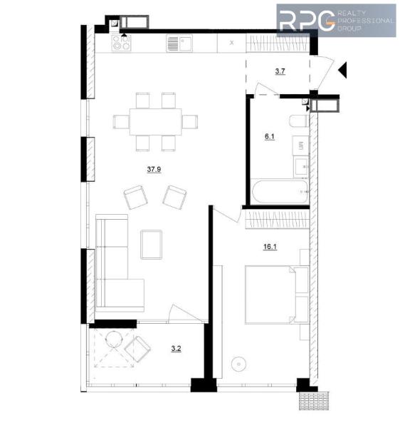
Продаж дуже великої 1к квартири Євродвушка 67 кв.м в ЖК Русанівська Гавань
17\26 пов
Дуже велика кухня-вітальня 37.9 кв.м з виходом на балком, кутова
Квартира з видом на Дніпро
сек 13 в будинку 13-17, від Ковальська,
здача будинку 2 квартал 2026 року

Власна котельня для кожного будинку

Облаштована набережна на березі Дніпра - місце для прогулянок, ранкових пробіжок та відпочинку на шезлонгах

Спортивна зона з тренажерами просто неба, дитячі ігрові зони для дітей різного віку

Вагомою перевагою є зручна інфраструктура району. За 10 хвилин ходьби знаходяться ТРЦ "Комод", продуктові гіпермаркети, кінотеатр "Мультіплекс", безліч кафе та ресторанів. Неподалік розташовані лікарні, аптеки, побутові магазини та салони краси.

Поруч є супермаркети великих торгових мереж: 15 хвилин пішки до Novus та «Сільпо», 10 хвилин на авто до Varus, ще одного Novus та «Сільпо». Також за 5 хвилин можна доїхати до Лівобережного ринку, де продають свіжі фрукти та овочі.

Основна інформація

Ціна:  
- за об’єкт 118 500 $
- за кв. метр ≈1 769 $
Ремонт: без ремонту
Клас житла: комфорт
Типове планування: нестандартне планування
Кількість кімнат: 1
Кількість спалень: 1
Площа загальна, м²: 67
Поверх: 17
Поверхів: 25
Розташування: спальні райони

Додатково

Комунікації

Вода:
центральна;
Опалення:
центральне;

Інфраструктура та сервіс

Громадський транспорт:
метро - Лівобережна (25 хв. пішки, 20 хв. на транспорті);

Інше

1-1Д, кв 89. 1 секця.

Дата оновлення інформації:
14.04.2026 15:06;