Продам 1-кімнатну квартиру
Розташування: Київ, Солом'янський район, Караваєві Дачі, Гетьмана Вадима вул., 38
Мапа
Продаж 1-кімнатної квартири на вул. Гетьмана, 38
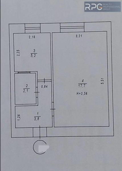
Квартира розташована на 1 поверсі 9-поверхового цегляного будинку. Загальна площа — 28,8 м², житлова — 17,7 м², кухня — 5,2 м². Стан — під ремонт, що дозволяє втілити власні дизайнерські рішення, адже внутрішні стіни не є несучими. Вікна виходять у тихий двір.
Локація та інфраструктура:
До станції метро Шулявська — 15 хвилин пішки.
Поруч супермаркети Фора, АТБ, Сільпо, торгові центри Аркадія та Космополіт.
У безпосередній близькості розташовані провідні університети: КПІ, НАУ, Нархоз, МАУП.
Для відпочинку — парк Мамаєва Слобода та парк Відрадний (15 хвилин пішки).
Спорткомплекс на Відрадному з відкритим басейном та спортивними секціями — 15 хвилин транспортом.
Зручна транспортна розв’язка забезпечує швидке сполучення з будь-якою частиною Києва.
Переваги:
Вдале планування для створення сучасного інтер’єру.
Тихий двір та розвинена інфраструктура.
Ідеальний варіант як для власного проживання, так і для інвестиції з метою оренди.
Комісія АН
Основна інформація
Ціна: | |
- за об’єкт | 33 000 $ |
- за кв. метр | ≈1 138 $ |
Ремонт: | без ремонту |
Клас житла: | економ |
Кількість кімнат: | 1 |
Кількість спалень: | 1 |
Площа загальна, м²: | 29 |
Площа житлова, м²: | 17.70 |
Поверх: | 1 |
Поверхів: | 9 |
Санвузлів: | 1 |
Розташування: | центр міста |
Додатково
Комунікації
- Вода:
- центральна;
- Опалення:
- центральне;
- Інтернет:
- виділена лінія;
- Лічильники:
- холодна вода, гаряча вода;
Параметри об’єкта
- Матеріал стін:
- цегла;
Інфраструктура та сервіс
- Громадський транспорт:
- метро - Шулявська (18 хв. пішки, 5 хв. на транспорті);
- Освітні заклади:
- школа, дитсадок;
- Банківськи послуги:
- банкомат, термінал прийому платежів, пункт обміну валют;
- Побутовий сервіс:
- мінімаркет, супермаркет, торгівельний центр, ринок, парковка перед будинком, аптека, перукарня, пошта;
- Релаксаційні сервіси:
- більярд, дитячий майданчик;
- Громадське харчування:
- кафе, ресторан;
Інше
- Дата оновлення інформації:
- 06.10.2025 14:45;