SF-3-211-526
Продам 1-кімнатну квартиру, ЖК Теремки
Розташування: Київ, Голосіївський район, Пирогів, Заболотного Академіка вул.

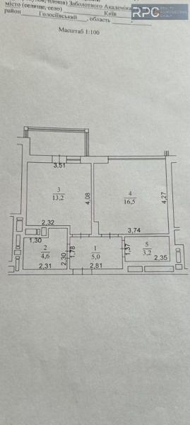
Пропонується світла та простора 1-кімнатна квартира з неймовірним видом у ЖК "Теремки" вул. Заболотного, 15Г. Житловий комплекс зданий в експлуатацію в 2023р, більшість мешканців вже зробили ремонт. В квартирі виконана стяжка підлоги та штукарка стін. Презентабильна вхідна група, швидкий ліфт , територія під охороною і закрита від сторонніх , дитячий і спортивний майданчик, є підземний паркінг. Загальна площа – 46.3м² Панорамні вікна в кухні та на балконі – максимальне природне освітлення. Поруч мальовничий Голосіївський ліс, парк ВДНГ, парк Феофанія- ідеальні місця для прогулянок і відпочинку. Розвинена інфраструктура Теремків: супермаркети, ТРЦ, школи, дитячі садочки , зручна транспортна розв'язка.
Основна інформація
Ціна: | |
- за об’єкт | 53 000 $ |
- за кв. метр | ≈1 145 $ |
Ремонт: | без внутрішніх робіт |
Клас житла: | комфорт |
Типове планування: | нестандартне планування |
Схема кімнат: | роздільна |
Кількість кімнат: | 1 |
Площа загальна, м²: | 46.30 |
Поверх: | 25 |
Поверхів: | 25 |
Рік будівництва: | 2021-2025 |
Санвузлів: | 1 |
Розташування: | спальні райони |
Додатково
Комунікації
- Вода:
- центральна;
- Опалення:
- центральне;
Параметри об’єкта
- Матеріал стін:
- газоблок;
Інфраструктура та сервіс
- Громадський транспорт:
- метро - Теремки (30 хв. пішки, 20 хв. на транспорті);
Інше
- Дата оновлення інформації:
- 22.09.2025 14:21;