SF-2-875-549
Продам 2-кімнатну квартиру в новобудові, ЖК Чарівне Місто
Розташування: Київ, Дарницький район, Червоний Хутір, Бориспільська вул., 18
Мапа
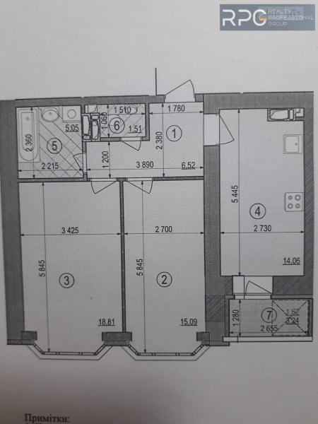
Продаж 2-кімнатної квартири в ЖК комфорт-класу "Чарівне Місто", площею 62.66 м². Квартира знаходиться на 8-му поверсі 16-поверхового будинку.
Житлова площа - 33.9 м², кухня - 14.06 м²,
Поруч знаходиться метро Червоний Хутір, розвинена інфраструктура, зручне транспортне сполучення.
В 15-ти хвилинах пішої ходи знаходяться "легені" Дарницького району - Парк Партизанської слави. На території ЖК наявний підземний паркінг.
Основна інформація
Ціна: | |
- за об’єкт | 42 000 $ |
- за кв. метр | ≈670 $ |
Ремонт: | без ремонту |
Клас житла: | комфорт |
Типове планування: | нестандартне планування |
Схема кімнат: | роздільна |
Кількість кімнат: | 2 |
Кількість спалень: | 2 |
Площа загальна, м²: | 62.66 |
Площа житлова, м²: | 33.90 |
Поверх: | 8 |
Поверхів: | 16 |
Рік будівництва: | 2021-2025, новобуд |
Санвузлів: | 1 |
Балконів: | 1 |
Розташування: | спальні райони |
Вигляд з вікна: | двір |
Додатково
Комунікації
- Вода:
- центральна;
- Опалення:
- центральне;
- Лічильники:
- холодна вода, гаряча вода, опалення;
Параметри об’єкта
- Матеріал стін:
- моноліто-каркас;
- Матеріал перекриттів:
- залізобетон;
Благоустрій
- Безпека:
- консьєрж, домофон;
Інфраструктура та сервіс
- Громадський транспорт:
- метро - Червоний хутір (15 хв. пішки, 10 хв. на транспорті);
- Парковка:
- підземний паркінг;
- Освітні заклади:
- школа, дитсадок;
- Банківськи послуги:
- відділення банку, банкомат, термінал прийому платежів, пункт обміну валют;
- Побутовий сервіс:
- мінімаркет, супермаркет, торгівельний центр, ринок, парковка перед будинком, аптека, клініка, перукарня, пошта;
- Релаксаційні сервіси:
- парк (сад), дитячий майданчик, ліс, озеро / річка;
- Громадське харчування:
- кафе, ресторан, фастфуд, бар;
Інше
Будинок 2, секція 2 Вид у двір (південна сторона)
- Дата оновлення інформації:
- 25.09.2025 14:49;