Здам 4-кімнатну квартиру, ЖК «Хвиля»
Розташування: Київ, Печерський район, Печерськ, Старонаводницька вул., 13
Мапа
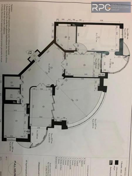
До вашої уваги представлена 4-кімнатна квартира на оренду за адресою: вул. Старонаводницька 13.
Розташована на 12 поверсі 16-поверхового будинку.
Квартира з хорошим ремонтом, обладнана необхідною технікою: холодильник, пральна машина, бойлер, кондиціонер, духова шафа, варильна поверхня тощо.
У пішій доступності супермаркети, торгові центри, ресторани, велика кількість магазинів.
Зручна транспортна розв'язка – 5 хвилин до центру міста, поряд метро Печерська і Кловська.
Працюючи з нами, ви отримуєте лише перевірене житло від реальних орендодавців за адекватною ціною.
Повний супровід на всіх етапах угоди.
Ми гарантуємо, що ви залишитеся задоволені співпрацею.
Комісія АН RPG – 50% після підписання договору оренди.
Для перегляду та детальної інформації телефонуйте або пишіть у зручний для вас месенджер — Viber, Telegram чи WhatsApp.
Основна інформація
Ціна: | |
- за об’єкт | 2 000 $ |
- за кв. метр | ≈10 $ |
Додаткові платежі: | по лічильниках і опалення |
Ремонт: | радянський ремонт |
Клас житла: | бізнес |
Типове планування: | нестандартне планування |
Кількість кімнат: | 4 |
Площа загальна, м²: | 195 |
Поверх: | 12 |
Поверхів: | 16 |
Санвузлів: | 2 |
Розташування: | центр міста |
Додатково
Комунікації
- Вода:
- центральна;
- Опалення:
- центральне;
- Лічильники:
- холодна вода, гаряча вода, опалення;
Благоустрій
- Кондиціювання:
- спліт-системи;
- Побутова техніка:
- плазмовий телевізор, варильна панель, електроплита, духовка електрична, холодильник, витяжка, пральна машина на кухні, пилосмок, кондиціонер;
- Додатково:
- джакузі, меблі, Wi-Fi, сушарка для білизни;
- Безпека:
- консьєрж, домофон, укриття;
- Автономність
- Працює інтернет, Є вода, Є опалення;
Інфраструктура та сервіс
- Громадський транспорт:
- метро - Печерська (10 хв. пішки, 5 хв. на транспорті);
- Освітні заклади:
- школа, дитсадок;
- Банківськи послуги:
- банкомат, термінал прийому платежів;
- Побутовий сервіс:
- мінімаркет, супермаркет, парковка перед будинком, закріплене паркомісце, аптека, клініка, перукарня, пошта;
- Релаксаційні сервіси:
- фітнес центр, сауна, басейн, парк (сад), дитячий майданчик;
- Громадське харчування:
- кафе, ресторан;
Інше
- Дата оновлення інформації:
- 06.10.2025 14:15;